Giới Thiệu Dự Án
VENTURA Q2
Khu villa Ventura tọa lạc tại gần cảng Cát Lái, đây là một trong những khu vực cảng lớn nhất thuộc khu vực miền Nam. Dự án có thiết kế hiện đại, sự đa năng trong kết hợp giữa chức năng kinh doanh cũng như sinh sống an cư.
Ventura đã hứa hẹn là nơi phát triển giao thương và dịch vụ thương mại hội nhập trong thời gian tới. Hình thành cuộc sống trọn vẹn; thịnh vượng và hạnh phúc nhất cho mọi người.
Các sản phẩm của dự án đã được bàn giao hoàn thiện khi mỗi căn biệt thự đều được kết cầu có 1 trệt + 3 lầu hiện đại, bao bọc cùng hệ thống sông xanh trong lành.
Sự thoáng mát của từng sản phẩm đã được khởi công từ năm 2011 và bàn giao hoàn thiện với vật liệu cao cấp, chất lượng hàng đầu đã được bàn giao vào thời điểm cuối tháng 11/2012.
THÔNG TIN DỰ ÁN VENTURA Q2
- Dự án: Biệt Thự Ventura Quận 2
- Vị trí: Đường số 18 - P. Cát Lái – Q.2 - TP Hồ Chí Minh
- Chủ đầu tư: Công ty TNHH Đầu tư Vĩnh Phú
- Đơn vị phát triển: Công ty CP Kiến Á
- Tổng diện tích đất: 20.000 m2
- Mật độ xây dựng: 40%
- Loại hình sản phẩm: Biệt thự liền kề
- Quy mô sản phẩm: 3 tầng cao + 1 tầng ahafm
- Diện tích thiết kế: 119 - 204 m2
- Số lượng sản phẩm: 92 căn
- Giá bán: Từ 34 triệu đồng/m2
- Khởi công: Năm 2011
- Bàn giao: Quý IV/2012
- Đại Lý Phân Phối: SÀN EXPRESS
Vị Trí Tọa Lạc Đắc Địa VENTURA Q2
Biệt thự Ventura có vị trí tọa lạc tại đường số 18 - P. Cát Lái – Q.2 - TP Hồ Chí Minh. Từ nơi đây giúp cư dân nhanh chóng tới với khu Đông Sài Gòn, kết nối trung tâm thành phố bằng hàng loạt tuyến đường mới đã được quy hoạch, mở rộng và phát triển.
Dự án Ventura nằm trong tổng thể của dự án KĐT khép kín kiểu mẫu Cát Lái. Chính bởi vì khi hoàn thành thì nơi đây hội tụ đầy đủ mọi công trình hạng mục tiện ích hiện hữu trong phạm vi vài km. Mang lại tương lai thịnh vượng, hạnh phúc cho mọi người.
Nhờ vị trí này mà ngoài khả năng liên kết vùng thì cư dân cũng còn mang lại kênh đầu tư sinh lời hàng đầu cho những khách hàng có nhu cầu mua để ở, các nhà đầu tư tìm kiếm kênh đầu tư mới.
Chỉ 12 phút tới với trung tâm quận 1
15 phút để dự án tưới với Chợ Bến Thành
Khoảng 10 phút di chuyển tới KĐT quận 7
Tầm 4km để tới trung tâm TDTT và sân golf Rạch Chiếc

6 lý do nên chọn đầu tư VENTURA Q2
Tiện Ích Đồng Bộ 5 Sao VENTURA Q2
Dự án đã hoàn thành hàng loạt tiện ích dịch vụ hiện hữu đầy đủ, công trình tiện ích ngay nội khu như: trung tâm thương mại mua sắm; trường học mẫu giáo; câu lạc bộ; công viên sống xanh; trung tâm TDTT; yoga; phòng tập gym;…
Ngoài ra thì dự án Ventura đã được thừa hưởng hàng loạt các tiện ích hiện hữu ngay trong phạm vi khu vực như: cụm trường học các cấp; bệnh viện quốc tế; trung tâm TDTT; bưu điện; hàng loạt cơ quan và trung tâm hành chính; Trung tâm mua sắm; siêu thị; chợ dân sinh;…
Mặt Bằng VENTURA Q2
Biệt thự Ventura Q.2 thuộc KĐT Cát Lái được triển khai xây dựng với tổng diện tích 2 ha đã được triển khai xây dựng 92 căn biệt thự cao cấp quy mô 3 tầng + 1 sân thượng.
Mặt bằng chi tiết các sản phẩm như sau:
+ 72 căn biệt thự với quy hoạch với tiêu chuẩn thiết kế ngay mặt tiền rộng 7 x17 m
+ 12 căn biệt thự góc tọa lạc tại ngã tư, giao lộ
+ 8 căn góc nằm giáp ranh với công viên nội khu, diện tích 9x 17m; 10 x17 m; 11x 17m; 12x17m.
Điểm nhấn là các căn biệt thự có garage để xe riêng, có thiết kế thông minh giúp cho mọi gia chủ có một khoảng không gian rộng lớn bố trí vừa để ở cũng như kinh doanh.
.jpg)

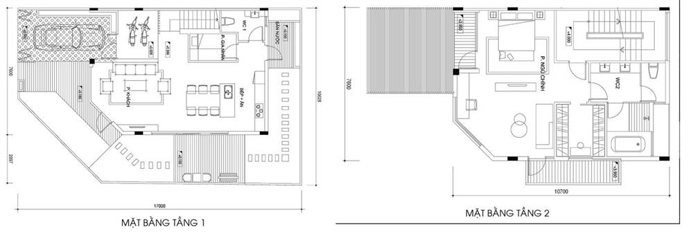
Mặt Bằng Chi Tiết VENTURA Q2
Dự án biệt thự Ventura có quy hoạch mặt bằng chi tiết bao gồm 1 trệt + 3 lầu với các loại hình biệt thự nằm tại giao lộ; biệt thự góc công viên; biệt thự điển hình.
Khách hàng có thể lựa chọn với diện tích 7x17m; 14x17m, có một số căn có thiết kế với tầng hầm để xe rộng rãi. Đối với các dãy nhà tại mặt tiền đường thì khách hàng được thiết kế với mục tiêu kết hợp vừa ở - kinh doanh.
Đối với các dãy nhà tọa lạc trên mặt tiền đường thì được thiết kế với mục đích chỉ để ở. Nhưng khách hàng vẫn có thể bố trí kinh doanh.

Thiết Kế VENTURA Q2
Biệt thự Ventura tiên phong tại KĐT Cát Lái 153 ha với CĐT là Công ty CP Kiến Á đã phát triển bao gồm 92 ngôi nhà phố đã được thiết kế với phong cách kiến trúc hiện đại với hai loại hình nhà phố; biệt thự và nhà phố kết hợp vừa ở cũng như kinh doanh.
Biệt thự Ventura đã được thiết kế đảm bảo hiện đại, hòa cùng không gian sống xanh trong lành, đem lại sự riêng tư và giúp cư dân tách biệt khỏi sự ồn ào của cuốc sống xô bồ.
Các sản phẩm trang bị nội thất bàn giao hoàn thiện của các thương hiệu cao cấp, được kiểm tra chất lượng đạt tiêu chuẩn hàng đầu cùng tính thẩm mỹ cao. Đảm bảo mang lại cho cư dân những sản phẩm tốt nhất.
Giá Bán VENTURA Q2
Dự án biệt thự Ventura được CĐT đưa ra mức giá bán từ 34 triệu đồng/m2. CĐT đưa ra phương thức thanh toán linh hoạt, chia thành nhiều đợt như:
Đặc biệt, khách hàng được ngân hàng BIDV bão lãnh, hỗ trợ vay vốn.
Bàn giao: Quý IV/2012
Mật độ xây dựng: 40%
- Quý khách tham khảo thêm các chuyên mục khác của X HOME:
