Ngày nay, nhiều gia đình chọn xây những ngôi nhà cao tầng, biệt thự, chung cư mini,... do nhu cầu di chuyển giữa các tầng lớn nên việc lắp một chiếc thang máy là lựa chọn của nhiều gia đình.
Thang máy gia đình ngày càng được mọi người ưa chuộng trong cuộc sống bởi vì sự tiện lợi, tiện nghi, thoải mái mà nó mang lại. Tuy nhiên nhiều người gặp khó khăn khi tìm hiểu và lắp đặt thang máy trong nhà. Cho nên bài viết sẽ giới thiệu cho bạn thông tin về kích thước thang máy gia đình chi tiết và dễ hiểu nhất.
Các loại thang máy gia đình phổ biến

Tư vấn kích thước thang máy gia đình
Do mỗi công trình nhà sẽ có những đặc điểm riêng nên trước khi tìm hiểu về kích thước thang máy gia đình bài viết sẽ thông tin đến cho bạn các loại thang máy phổ biến và ưu nhược điểm để bạn xem xét. Hiện nay thì trên thị trường đang phổ biến 4 loại thang máy gia đình. Dưới đây là ưu điểm và nhược điểm của từng loại thang máy gia đình để bạn tham khảo.
Thang máy cáp kéo
Đây là loại thang máy gia đình chuyển động dựa vào hệ thống công nghệ cáp kéo. Loại thang máy này sử dụng phổ biến từ trong các loại công trình thấp tầng cho đến các siêu cao ốc có số tầng chọc trời.
Ưu điểm của thang máy công nghệ cáp kéo
- Thang máy cáp kéo chịu được tải trọng cao
- Tốc độ di chuyển của thang máy cáp kéo rất nhanh chóng
- Phù hợp lắp đặt cho cả các công trình thấp tầng và cao tầng.
Nhược điểm của thang máy cáp kéo
Loại thang máy này tốn khá nhiều diện tích. Khi lựa chọn lắp đặt thang máy thì công trình cần có độ sâu và độ cao đảm bảo để xây dựng phần hố pít và phần tầng trên cùng.
Thang máy thủy lực
Loại thang máy thủy lực hoạt động nhờ vào một hệ thống có tên là hệ thống truyền động Piston thủy lực.

Các loại thang máy gia đình
Ưu điểm của thang máy thủy lực
- Linh hoạt về kích thước thiết kế, phù hợp mọi loại không gian từ không gian hình thang, hình vuông, cho đến hình tròn…
- Thang máy thủy lực có công nghệ bảo vệ 4 lớp: ARD - SRS - Emcall - SWS nên đảm bảo an toàn.
- Khi chọn lắp đặt thang máy chủ nhà không cần phải đào sâu phần nền móng. Lý do là phần pit của thang máy ngắn chỉ 10cm đến 15cm nên loại thang máy này có thể xuất phát từ bất kỳ đâu.
- Thang máy thủy lực không cần phải xây thêm phòng máy: Chiều cao của tầng trên cùng tối thiểu 2.2m là được.
- Vận hành êm ái: Độ ồn của loại thang máy này chỉ dao động trong khoảng 40dB đến 48dB, như vậy loại thang máy này sẽ đảm bảo cho người sử dụng tốt nhất về sinh hoạt cho các thành viên trong gia đình.
Nhược điểm của thang máy thủy lực
Một nhược điểm có thể kể đến của loại thang máy thủy lực chính là cần bỏ ra số tiền lớn khi lựa chọn lắp đặt.

Thang máy thủy lực
Thang máy trục vít
Đây là loại thang máy gia đình chuyển động nhờ vào động cơ của thang máy và nhờ hệ thống trục vít, dây cu loa để tạo thành chuyển động.
Ưu điểm của thang máy trục vít
- Chiều sâu hố pit và chiều cao tầng trên cùng khi lắp đặt thang máy không cần lớn.
- Loại thang máy này có thể lắp đặt được trong không gian củ những ngôi nhà nhỏ.
- Tính thẩm mỹ của thang máy này được đánh giá khá ổn.
Nhược điểm của thang máy trục vít
- Dễ bị hao mòn thiết bị. Đến thời hạn bảo trì sẽ tốn nhiều chi phí. Lý do là phải thay thế phần bánh răng nếu bị mẻ, bị mòn cu loa,..
- Vật liệu của thang máy này được làm bằng loại thép phun sơn tĩnh điện cho nên không phù hợp lắm với khí hậu nóng ẩm ở Việt Nam, dễ gây ra han gỉ.
- Gây ra tiếng ồn khi hoạt động, tiếng ồn khoảng 60dB sẽ tương đương với tiếng của một chiếc máy hút bụi.
- Tốc độ di chuyển của thang máy khá chậm (di chuyển 4 tầng sẽ mất khoảng 1 phút 30 giây).
- Không có cabin, cho nên khi bước vào sàn để đi nếu như muốn ra thì bạn cần phải bấm thang cho chạy lên tầng khác thang mới có thể mở được cửa. Khá là bất tiện
- Mức kinh phí đầu tư cao.
Thang máy chân không
Đây là loại thang máy chuyển động nhờ vào sự chênh lệch của áp suất giữa phần dưới và phần trên của cabin tạo nên.
Ưu điểm của thang máy chân không
- Thang máy chân không sẽ không tiêu tốn nhiều năng lượng khi vận hành cho nên rất thân thiện với môi trường.
- Lựa chọn lắp đặt thang máy này sẽ không cần hố pit, không cần giếng thang và phòng máy
Nhược điểm của thang máy chân không
- Chi phí lắp đặt thang máy này cao.
- Khó bảo trì: do cần phải thay thế phần lớp đệm kính không khí chính.
- Quá trình vận hành chuyển động gây tiếng ồn lớn do việc bơm hút chân không tạo nên.
- Tải trọng tương đối thấp, tốc độ di chuyển cũng thấp. Chỉ phù hợp lắp cho nhà có tầng thấp.
Tư vấn kích thước thang máy gia đình

kích thước thang máy gia đình
Thông thường phần hố kích thước thang máy gia đình tiêu chuẩn sẽ là: 1500mmx1500mm, chiều rộng cabin là 800mm x chiều sâu 1100mm x chiều cao 2150 mm, cửa rộng 700mm.
Đối với thang máy gia đình có tải trọng 350kg thì kích thước thang máy cho đình nhỏ nhất là 1500mm (rộng) x 1400mm (sâu),…mỗi loại thang máy sẽ có kích thước khác nhau.
Lưu ý rằng các mốc tải trọng thang máy khác nhau sẽ có kích thước thay đổi theo. Do vậy chủ nhà cần chú ý vào các hố thang máy tiêu chuẩn theo quy định.
Thông số kích thước thang máy gia đình:
- Kích thước: 1500mm x 1500mm, Tải trọng: từ 350kg – 450kg, cabin: 1100 mm x 1000mm, OH: 3800mm, Pit: 800mm.
- Kích thước: 1300mm x 1300mm, Tải trọng: 200kg, cabin: 950mmx 800mm, OH: 3800mm, Pit: 800mm.
- Kích thước của thang máy 250kg: 1400mm x 1400mm
- Kích thước của thang máy 300kg: 1500mm x 1400mm
- Kích thước của thang máy 450kg: 1600mm x 1500mm
- Kích thước của thang máy 550kg: 1600mm x 1600mm
- Kích thước của thang máy 650kg: 1700mm x 1700mm
Khi các công trình nhà đã được xây dựng và chưa lắp đặt thang máy hoặc công trình bị khống chế về chiều cao thì chủ nhà nên chọn những loại thang máy không có phòng máy.

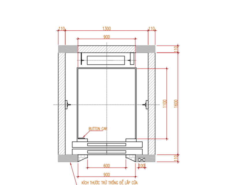
Bản vẽ thiết kế kích thước thang máy gia đình
Các yêu cầu về kích thước thang máy gia đình đạt chuẩn
- Số đo không vượt quá 30mm số đo giếng thang. Đặc biệt là cần phải thi công phần hố thang theo chuẩn kích thước của thang máy mà đơn vị cung cấp có yêu cầu làm hố thang.
- Tiêu chuẩn chất lượng cho việc chống thấm của hố pit là 200mm độ dày bê tông.
- 3800mm chính là độ cao của phần OH ở trong thang máy, OH sẽ được tính bắt đầu từ khoảng cách sàn phòng máy cho đến tầng cao nhất. Đối với phòng máy thì sẽ được thiết kế với kích thước cao 1500mm với đáy sàn phòng máy.
- Lỗ thả cáp treo phải có kích thước là 700 x 700 và phải nằm trên sàn phòng máy ở vị trí chính tâm của hố thang. Phần lỗ của geverne sẽ có kích thước là 200x200mm để thả cáp.
- Làm lanh tô cửa, lanh tô quan hố thang có chiều cao so với mặt sàn dùng để lắp đà cho thang máy là 1500m.
- Để đảm bảo an toàn trong vận hành thang máy thì người ta thiết kế kích thước thang máy gia đình với móc treo 16. Loại này có thể chịu được tải trọng lên đến 2 tấn và thêm vào đó là lỗ thông thoáng phần trên phòng máy.
- Nguồn 1 pha hoặc là nguồn 3 pha sẽ chính là nguồn điện để cung cấp cho thang máy trong quá trình hoạt động.

Yêu cầu về kích thước thang máy gia đình
Như vậy bài viết đã cung cấp cho bạn về kích thước thang máy gia đình một cách chi tiết và dễ hiểu nhất. Mong rằng những kiến thức này sẽ hữu ích với bạn.
