Giới Thiệu Dự Án
SENTURIA NAM SAI GON
Senturia Nam Sai Gon - Dự án nhà đất Việt Nam cung cấp phân khúc nhà phố, biệt thự cao cấp được triển khai xây dựng với CĐT là Tiến Phước thuộc khu vực Nam TP Hồ Chí Minh.
Dự án Senturia Nam Sai Gon nhận được sự quan tâm, đánh giá cao của khách hàng khi được trải dài hơn 1km đường bờ sông, kiến tạo nên không gian sống xanh thoáng đãng, trong lành.
THÔNG TIN DỰ ÁN SENTURIA NAM SAI GON
- Dự án: Senturia Nam Sai Gon
- Vị trí: Đường Nguyễn Văn Linh - Bình Hưng – H. Bình Chánh – TP Hồ Chí Minh
- Chủ đầu tư: Công ty CP BĐS Tiến Phước
- Tổng diện tích: 19,8 ha
- Mật độ xây dựng: 29%
- Loại hình sản phẩm: nhà phố; biệt thự; shophouse
- Số lượng sản phẩm: 263 căn Nhà phố; 94 căn Biệt thự; 84 căn Shophouse
- Hình thức sở hữu: sổ hồng
- Tính pháp lý: sở hữu lâu dài với người Việt; 50 năm với khách nước ngoài
- Khởi công: Quý IV/2018
- Bàn giao: Quý I/2020
- Đại Lý Phân Phối: CÔNG TY BDS EXPRESS
Vị Trí Tọa Lạc Đắc Địa SENTURIA NAM SAI GON
Dự án Senturia Nam Sài Gòn tọa lạc tại cầu Xóm Củi – đường Nguyễn Văn Linh –H. Bình Chánh –TP Hồ Chí Minh. Từ nơi đây, cư dân của dự án nhanh chóng kết nối tới các khu vực lân cận, trung tâm thành phố và đặc biệt là KĐT Phú Mỹ Hưng.
Ngoài điểm cộng của dự án khi lợi thế trải dài hơn 1km bên cạnh rạch Hiệp An mang lại không gian sống xanh trong lành, thoáng mát thì chính là kết nối khả năng giao thương quan trọng.
Đặc biệt, khi dự án nằm tại huyện Bình Chánh, chỉ vài phút để tới KĐT Phú Mỹ Hưng - Quận 7 nên đã giúp cho cư dân di chuyển nhanh chóng, tiếp cận hàng loạt tiện ích dịch vụ hiện hữu của khu vực này.
7 phút từ dự án tới KĐT Phú Mỹ Hưng
Khoảng 10 phút từ dự án tới Cầu Chánh Hưng
Chỉ 15 phút tới với Cầu Nguyễn Văn Cừ
Dự án nằm ngay giáp bên Rạch Hiệp An

6 lý do nên chọn đầu tư SENTURIA NAM SAI GON
Tiện Ích Đồng Bộ 5 Sao SENTURIA NAM SAI GON
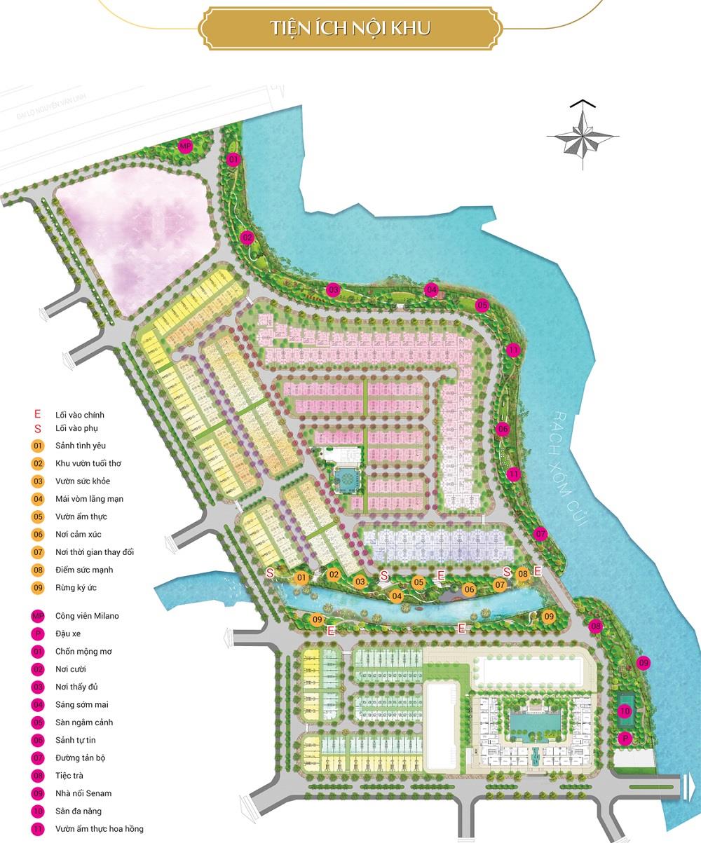
Tiện ích nội khu
Senturia Nam Sài Gòn được trang bị các tiện ích dịch vụ ngay nội khu, bố trí cùng hệ thống cây xanh, mặt nước rộng rãi, giúp cư dân dễ dàng sử dụng như:
+ Đường dạo bộ nội khu
+ Khu TDTT ngoài trời
+ Hệ thống công viên sống xanh
+ Vườn tuổi thơ
+ Hồ bơi
+ Khu vui chơi dành cho trẻ em
+ Vườn sức khỏe
+ Khu thương mại – dịch vụ
+ Hệ thống an ninh đảm bảo khép kín 24/7
+…
Bên cạnh các tiện ích dịch vụ nội khu như kể trên thì cư dân của dự án còn được hưởng lợi từ các tiện ích dịch vụ hiện hữu xung quanh như: trường ĐH RMIT; Trường Quốc tế Nam Sài Gòn; Trường Quốc Tế (BVIS); TTTMLotte Mart; Satra Phạm Hùng; đại siêu thị SC Vivo City; bệnh viện Pháp – Việt; bệnh viện Tâm Đức; …
Mặt Bằng SENTURIA NAM SAI GON
Dự án Senturia Nam Sài Gòn hình thành với phong cách hiện đại Địa Trung Hải triển khai xây dựng với tổng diện tích rộng 19,8 ha trong đó cung cấp các sản phẩm đa dạng cho khách hàng như sau:
+ 263 căn nhà liên kế vườn
+ 94 biệt thự song lập
+ 84 căn Shophouse


Mặt Bằng Chi Tiết SENTURIA NAM SAI GON
Senturia Nam Sài Gòn được ra đời với tâm huyết, đam mê và tâm huyết giúp kiến tạo nên cuộc sống cảm hứng mới. Từ đó hình thành nên không gian sống thư giãn, tiện nghi hàng đầu cho mọi cư dân.
Mật độ xây dựng của dự án chỉ 35% đã được triển khai xây dựng với 3 giai đoạn:
+ Giai đoạn 1, 2: triển khai 441 sản phẩm nhà phố và biệt thự bàn giao hoàn thiện mặt ngoài và xây thô bên trong cho mọi khách hàng
+ Giai đoạn 3: triển khai xây dựng 900 căn hộ chung cư cho thị trường. Hình thành nơi an cư, đầu tư sinh lời hàng đầu cho mọi cư dân.


Thiết Kế SENTURIA NAM SAI GON
Các sản phẩm của dự án được thiết kế với phiên bản mới, theo phong cách Địa Trung Hải là chủ đạo. Điểm nhấn là thiết kế với hàng hiên rộng; khối hình vững chãi cùng sự nổi bật, tràn đầy sức sống.
Sự quyến rũ và sang trọng nhưng vẫn đảm bảo sự thân quen đã khiến cho các sản phẩm Senturia Nam Sài Gòn trở thành nơi an yên hàng đầu của mọi cư dân mang phong cách Địa Trung Hải..
Diện tích thiết kế các sản phẩm của dự án như sau:
+ Nhà phố thương mại: 5x12m; 10x21m; 6x21m
+ Nhà phố liền kề: 5x12m; 10×18.5m; 10×17.5m
+ Nhà phố liền kề góc: 6×18.5m; 5×17.5m
+ Biệt thự song lập: 9x20m
Giá Bán SENTURIA NAM SAI GON
Senturia Nam Sài Gòn đưa ra mức giá bán trong khoảng dao động từ 80-120triệu đồng/m2. CĐT đưa ra PTTT linh hoạt khi chỉ cần thanh toán 7%/tháng cho tới khi nhận bàn giao nhà.
Khách hàng được hỗ trợ từ ngân hàng tối đa tới 50-70% giá trị sản phẩm. Nhờ đó khách hàng dễ dàng sở hữu sản phẩm, giảm bớt gánh nặng tài chính.
Mật độ xây dựng: 29%
Loại hình sản phẩm: nhà phố; biệt thự; shophouse
Số lượng sản phẩm: 263 căn Nhà phố; 94 căn Biệt thự; 84 căn Shophouse
Bàn giao: Quý I/2020
- Quý khách tham khảo thêm các chuyên mục khác của X HOME:
