Giới Thiệu Dự Án
M-ONE NAM SÀI GÒN
M-One Nam Sài Gòn của CĐT Masteri Homes – một ông lớn trê thị trường Dự án bất động sản toàn quốc đã được triển khai xây dựng ngay tại vị trí tọa lạc chiến lược, đắc địa hàng đầu khu vực quận 7. Không gian sống xanh của dự án được đánh giá cao với việc dự án nằm ven sông Trần Xuân Soạn; Bế Văn Cấm.
Từ nơi đây mà cư dân của dự án ngoài việc có khả năng liên kết vùng nhanh chóng, hoàn hảo tới các khu vực thì còn có tầm view nhìn đắt giá về phía trung tâm quận 1.
Dự án được CĐT triển khai xây dựng tiếp nối sự thành công của các sản phẩm mang thương hiệu Masteri cao cấp, cung cấp các sản phẩm đảm bảo chất lượng, tiến độ triển khai bởi các đối tác hàng đầu trong mọi lĩnh vực.
THÔNG TIN DỰ ÁN M-ONE NAM SÀI GÒN
- Dự án: M-One Nam Sài Gòn
- Vị trí: đường Bế Văn Cấm – P Tân Kiểng – Q.7 – TP Hồ Chí Minh
- Chủ đầu tư dự án: Masteri Homes
- Tổng diện tích: 13,903.8 m²
- Mật độ xây dựng: 36%
- Loại hình sản phẩm: Căn hộ cao cấp
- Quy mô: 2 tòa tháp cao 25 tầng
- Số lượng: 963
- Diện tích căn hộ: 57 – 94m2, 2-3PN
- Giá bán: Từ 2.5 tỷ đồng/căn
- Khởi công: Năm 2016
- Bàn giao: Quý II/2017
- Đại Lý Phân Phối: CÔNG TY CỔ PHẦN BẤT ĐỘNG SẢN EXPRESS
Vị Trí Tọa Lạc Đắc Địa M-ONE NAM SÀI GÒN
Dự án căn hộ M-One Nam Sài Gòn đã tọa lạc tại nơi có hội tụ 3 yếu tố phong thủy đảm bảo yếu tố vượng phong thủy đảm bảo “cận thị – cận giang – cận lộ”. Nhờ chính vị trí này đã giúp cho cư dân đến với trung tâm thành phố, các khu vực lân cận nhờ hàng loạt tuyến đường quan trọng, huyết mạch của nơi đây.
Trong phạm vi vài km, cư dân sẽ nhanh chóng tiếp cận với hàng loạt tiện ích dịch vụ; đáp ứng nhu cầu sinh hoạt của mọi người như: bệnh viện; trường học các cấp; siêu thị; trung tâm thương mại; chợ dân sinh; khu vui chơi giải trí;…
Chính vị trí tọa lạc này đã giúp gia tăng giá trị sản phẩm nhanh chóng trong tương lai, biến dự án trở thành nơi an cư lý tưởng, kênh đầu tư ổn định, lâu dài, đáng để khách hàng và nhà đầu tư xuống tiền sở hữu tại khu vực trung tâm quận 7.
Khoảng 10 phút tới trung tâm quận 1
Mất 5 phút tới KĐT Phú Mỹ Hưng
Trong phạm vi 3km là siêu thị mua sắm Lotte Mart
Chỉ 2km để tới bệnh viện; trường học các cấp

6 lý do nên chọn đầu tư M-ONE NAM SÀI GÒN
Tiện Ích Đồng Bộ 5 Sao M-ONE NAM SÀI GÒN
Tiện ích ngoại khu
Dự án M-One Nam Sài Gòn nhờ vị trí chiến lược tại trung tâm quận 7 đã khiến cho cư dân nhanh chóng tiếp cận với hàng loạt tiện ích dịch vụ cao cấp, hiện hữu trong phạm vi chỉ vài km, cần vài phút di chuyển đi lại như: chợ dân sinh; siêu thị Lotte Mart; bệnh viện; trường học; ngân hàng;…
Tiện ích nội khu
Bên cạnh các hạng mục tiện ích dịch vụ ngoại khu như đã được đề cập ở trên thì cư dân của dự án được CĐT trang bị hàng loạt tiện ích dịch vụ cao cấp, ngay tại nội khu, bố trí hợp lý giúp khách hàng dễ dàng tiếp cận, sử dụng như: TTTM; siêu thị; chuỗi của hàng; quán coffee; hồ bơi cao cấp; phòng gym; spa; yoga; khu vui chơi giải trí dành cho mọi cư dân;…
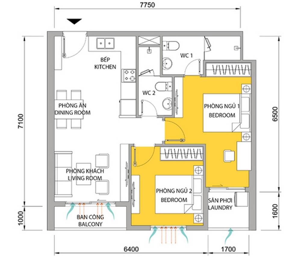
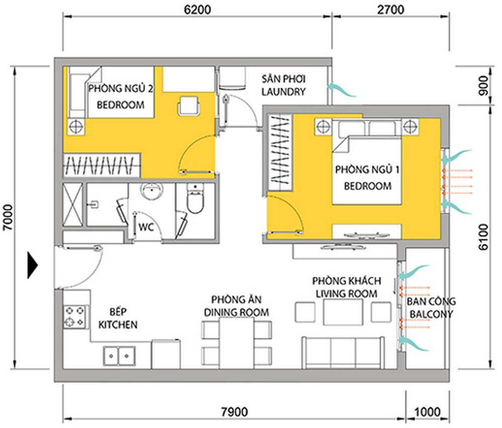
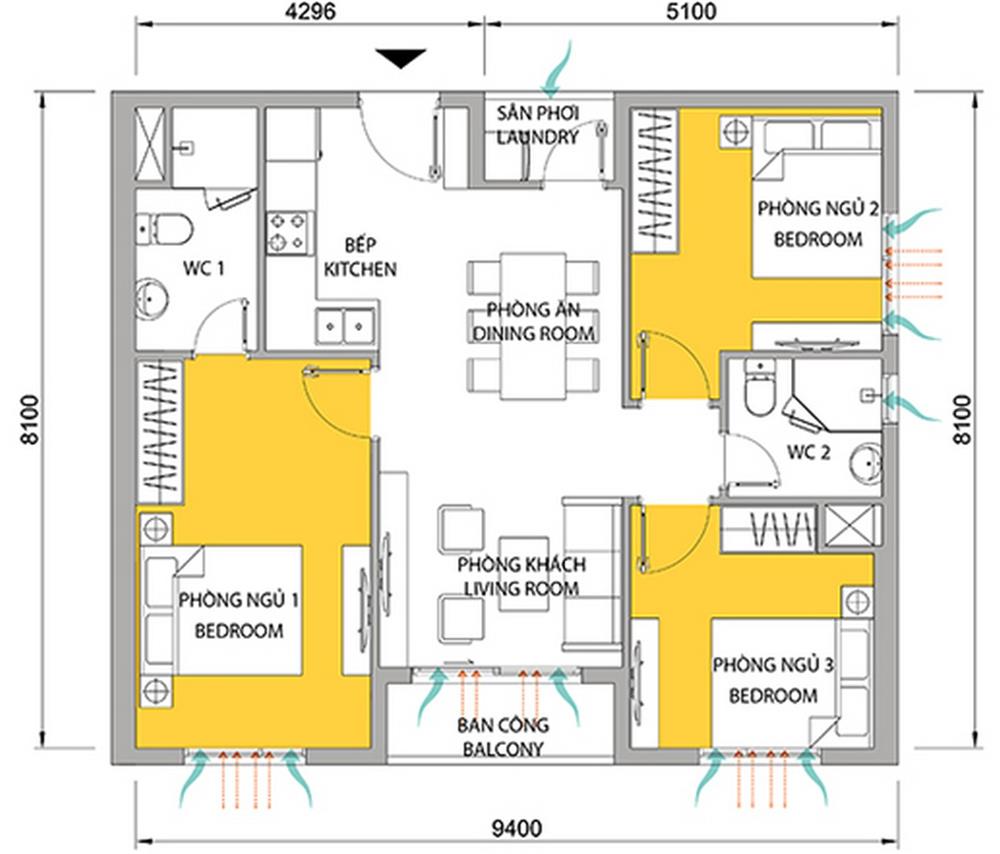
Mặt Bằng M-ONE NAM SÀI GÒN
M-One Nam Sài Gòn được triển khai xây dựng với tổng diện tích 13,903.8 m², có mật độ xây dựng chỉ 36% bao gồm 1 tòa tháp căn hộ và 1 tòa tháp đôi với chiều cao 25 tầng. Dự án đã cung cấp các loại hình căn hộ điển hình và căn hộ shophouse cho khách hàng lựa chọn vừa ở - kinh doanh.
Tổng số lượng sản phẩm của dự án cung cấp cho thị trường lên tới 963, có từ 2-3PN, diện tích từ 57 – 94m2.

Mặt Bằng Chi Tiết M-ONE NAM SÀI GÒN
Các tòa tháp của dự án đã được quy hoạch, phân chia bao với hai khối riêng biệt A-B như với chiều cao tới 25 tầng như sau:
Tòa tháp 1
+ Tầng 1-2: bố trí siêu thị mua sắm, các căn shophouse để khách hàng sở hữu vừa ở, kinh doanh.
+ Tầng 3: CĐT bố trí chuỗi tiện ích dịch vụ dành cho cư dân dễ dàng sử dụng
Tòa tháp 2
Có quy mô bào gồm tòa tháp đơn với chiều cao 25 tầng. Bố trí tại mặt trước của tầng 1-2 là các căn shophouse, phía sau là bãi để xe hiện đại cho cư dân.
Tầng 3, bố trí tiện ích dịch vụ; còn các tầng còn lại là các căn hộ cao cấp để ở.



Thiết Kế M-ONE NAM SÀI GÒN
M-One Nam Sài Gòn thiết kế căn hộ hiện đại, được các kiến trúc sư hàng đầu thiết kế và trau chuốt trong từng chi tiết nhỏ nhất, hình thành không gian sống thông minh cho mọi chủ sở hữu.
Nhờ lối thiết kế này đã giúp cho cư dân của dự án đảm bảo công năng sử dụng, đầy đủ chức năng của một căn hộ cao cấp khi đem lại cho khách hàng nhiều sự lựa chọn từ 2-3PN, diện tích rộng rãi từ 57m2 – 94 m2.
Điểm nhấn thu hút khách hàng, nhà đầu tư của dự án ngoài thiết kế còn chính là nội thất cao cấp, chất liệu hoàn thiện đảm bảo an toàn, độ bền lâu dài cho khách hàng sở hữu trong khoảng thời gian dài. Các đồ nội thất tới từ các thương hiệu nổi tiếng, cao cấp giúp hình thành không gian sống lý tưởng, tạo nên sự sang trọng, đẳng cấp.
Giá Bán M-ONE NAM SÀI GÒN
CĐT Masteri Homes đã được CĐT đưa ra thị trường với mức giá bán trong khoảng từ 1,28 tỷ đồng/căn. Đây là mức giá bán hấp dẫn, phù hợp với mọi khách hàng cũng như nhà đầu tư đang có nhu cầu tìm mua sản phẩm mới để an cư, đầu tư sinh lời tại quận 7.
Ngân hàng đã hỗ trợ khách hàng vay vốn tới 70% GTSP, mức lãi suất ưu đãi chỉ 9.99%/ năm trong thời gian 3 năm, đặc biệt được miễn phí trả nợ trước hạn.

Số lượng: 963
- Quý khách tham khảo thêm các chuyên mục khác của X HOME:
