Mẫu nhà cấp 4 hiện nay đang được đánh giá cao về thiết kế lẫn tiêu chuẩn kiến trúc. Đây là công trình vừa mang đến không gian sống thoải mái vừa tiết kiệm chi phí đầu tư. Đặc biệt mẫu nhà cấp 4 có gác lửng là sản phẩm Hot nhất, ưa chuộng nhất với người dùng. Vậy nên nếu bạn đang có nhu cầu xây dựng một tổ ấm hoàn mỹ với chi phí rẻ thì hãy tham khảo Top 3 mẫu thiết kế đẹp mà xaydungxhome.vn gợi ý.
Nhà cấp 4 mang đến sự hài lòng cho gia chủ
Mẫu nhà cấp 4 có gác lửng thiết kế mái Thái
Mẫu nhà cấp 4 có gác lửng đẹp mái Thái mang đến sự tiếp biến rõ nét so với các công trình truyền thống. Kiến trúc mái dường như có sự thông thoáng về biên độ mà vẫn đảm bảo được đường nét thẩm mỹ. Với tổng chi phí đầu tư không vượt quá 500 triệu đồng, đây sẽ là tổ ấm chuẩn cho mọi gia đình Việt.
Phối cảnh ngôi nhà
Sản phẩm được xây dựng trên tổng diện 60m2 với phối cảnh mặt tiền mang màu sắc đơn giản với hệ thống mái Thái giật cấp ché. Thiết kế mái đối xứng với đường gờ đậm chạy ngang làm nổi bật đường nét tinh tế, bền vững của công trình hiện đại.
Phối cảnh mẫu nhà cấp 4 thiết kế gác lửng mái thái trên tổng diện tích 60m2
Phần chân trụ mặt tiền tăng điểm nhấn bằng các hiệu ứng thẩm mỹ, ốp đá tự nhiên nâu xám sáng. Hệ thống lam chắn trước mặt tiền cùng mặt sảnh rộng và sân trước lát gạch ghi xám tạo nên sự bền vững, chắc chắn cho công trình.
Toàn bộ cửa chính mặt tiền của công trình được thiết kế bằng nhôm xingfa nâu cà phê hiện đại. Đi kèm với đó là kính dán an toàn cùng hệ trụ cột lớn tạo nên sự bề thế cho công trình. Hệ thống cây cỏ cũng được đan xen tạo sự thông thoáng và sâu hơn cho công trình.
Mặt bằng công năng
Mẫu nhà cấp 4 có gác lửng mái Thái ở tầng 1 sẽ tập trung cho không gian sinh hoạt chung. Bao gồm phòng khách liên thông bếp và ngăn cách bằng cầu thang của tầng lửng. Phía trong cùng là 1 phòng ngủ nhỏ dành riêng cho ba mẹ. Một nhà vệ sinh nhỏ cũng được bố trí nơi đây ngay tại giữa phòng bếp và phòng ngủ.
Mặt bằng công năng tại tầng 1 của ngôi nhà được xây dựng rất logic
Bước lên tầng 2 sẽ được bố trí cân đối theo nhu cầu sử dụng của người dùng. Nơi đây bố trí đến 2 phòng ngủ nhỏ sử dụng chung phòng WC ngay góc cuối nhà. Không gian thông sảnh của tầng lửng được tận dụng để tạo khu phòng thờ nhỏ trang nghiêm cho gia đình.
Mặt bằng công năng tầng 2 của ngôi nhà bố trí chủ yếu là không gian sinh hoạt chung
Mẫu nhà cấp 4 có gác lửng hiện đại
Nếu bạn muốn tổ ấm của mình theo hướng cao cấp, sang trọng thì mẫu nhà cấp 4 có gác lửng hiện đại sẽ là lựa chọn cho bạn. Mẫu nhà này được xây dựng trên diện tích trên quỹ đất 136m2 với chi phí dự kiến khoảng 700 triệu đồng. Chi tiết mẫu nhà như sau:
Phối cảnh ngôi nhà
Mẫu nhà này được xây dựng với mặt tiền 9m rộng rãi giúp căn nhà nhìn lớn hơn, bề thế hơn. Sảnh chính thiết kế bậc tam cấp, cột trụ mạnh mẽ, vuông vức tạo sự chắc chắn, vững chái. Toàn bộ nhà phủ sơn trắng kết hợp với gam màu xám ghi, nâu sáng. Mặc dù gam màu không quá nổi bật nhưng lại tạo nên một tổng thể hợp lý.
Phối cảnh mặt tiền của mẫu nhà đẹp mắt cuốn hút ánh nhìn người xem
Hệ thống cửa chính thiết kế kính khung gỗ nổi bật giữa nền sơn trắng nâng tầm vị thế cho căn nhà. Sự bề thế được thoát ra từ cửa chính rộng, hiện đại toát ra từ hệ thống của kính khung nhôm mới mẻ. Ánh sáng tự nhiên trong căn nhà cũng được hoàn thiện hơn nhờ hệ thống cửa đa dạng. Do đó không gian căn nhà luôn đảm bảo sự mát mẻ, thông thoáng.
Điểm nhấn chính trong hệ thống là phần mái. Theo đó phần mái bằng kết hợp với mái chéo cực kỳ độc đáo. Đây là kiểu mái đặc trưng vừa giúp căn nhà mát mẻ vào ngày nóng cũng dễ dàng dốc nước vào mùa mưa tới.
Mặt bằng công năng
Công năng mẫu nhà cấp 4 gác lửng được xây dựng gồm 2 tầng chính. Bước vào tầng 1 sẽ gồm phòng khách lớn kết hợp cùng phòng thờ rộng rãi. Ngay cạnh là khu phòng bếp cùng không gian ăn uống đầy ấm cùng. Tại đây còn tích hợp 1 phòng ngủ nhỏ cho bố mẹ và khu WC đặt ngay cạnh cầu thang.
Chi tiết công năng tầng 1 của mẫu nhà
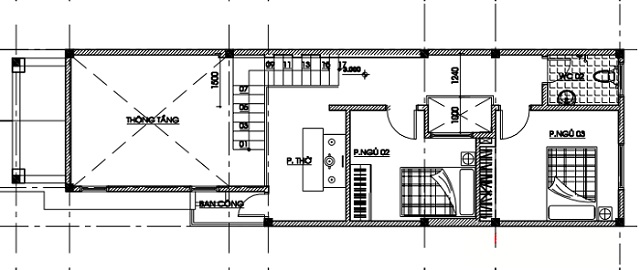
Bước lên tầng gác lửng sẽ chuyên dùng cho các công năng sinh hoạt riêng của thành viên gia đình. Nơi đây xây dựng gồm 2 phòng ngủ lớn cho con cái đối diện nhau. Một phòng WC sẽ đặt ngay trung tâm gần cầu thang lên xuống để tiện cho việc sử dụng.
Chi tiết mặt bằng công năng tại tầng lửng
Mẫu nhà cấp 4 gác lửng mái bằng
Và mẫu nhà cấp 4 gác lửng cuối cùng bạn có thể tham khảo cho mình chính là mẫu thiết kế mái bằng. Đây là sản phẩm được xây dựng trên diện tích vừa đáp ứng công năng sinh hoạt cho 4 thành viên. Tổng chi phí ước tính đạt khoảng 700 triệu đồng.
Phối cảnh chi tiết
Có thể nhận định rằng ngay từ mặt tiền của công trình đã làm hút hồn bao người xem. Bởi lẽ thiết kế ngôi nhà mang nhiều khối hình độc đáo cùng cây xanh thoáng mát. Khu vực mặt tiền được cách điệu với mảng thông gió hoa văn màu sắc hài hòa. Đây vừa là nhân tố giúp tô điểm thẩm mỹ vừa hỗ trợ lấy gió hiệu quả và chống nắng cho ngôi nhà.
Phối cảnh mặt tiền của mẫu nhà cấp 4 gác lửng nổi bật với mảng thông gió
Ngay sảnh chính là hệ thống cây cỏ anh mát cùng bậc tam cấp hoàn thiện. Cấu trúc ngôi nhà theo hình khối với tông màu chủ đạo là ghi xám và trắng có chút đơn giản nhưng lại nổi bật. Hệ thống cửa được làm từ nhôm kính xingfa với khung cửa lớn tạo tầm view ấn tượng và sự thông thoáng cho ngôi nhà.
Đặc biệt điểm nhấn mặt tiền của mẫu thiết kế này còn đến từ sân vườn phía trước. Sân vườn rộng rãi có khu vực để xe riêng, ngay cạnh là sân cỏ với xích đu màu trắng mang chút thơ mộng. Bao quanh là hệ thống tường rào chắc chắn.
Khu vực sân vườn có xích đu
Công năng ngôi nhà
Công năng ngôi nhà được bố trí đầy đủ nhu cầu cho 4 thành viên sinh hoạt. Phong cách thiết kế mang màu sắc trẻ trung, hiện đại nhưng vẫn đảm bảo được yếu tố cân bằng. Để hạn chế góc cạnh trong ngôi nhà còn tích hợp thiên nhiên và giếng trời ngay cạnh bếp rất thoáng mát.
Bước vào tầng 1 ngôi nhà cơ bản sẽ được bố trí các chức năng sinh hoạt chung. Bao gồm phòng khách, phòng bếp, phòng ăn WC. Nơi đây còn sở hữu khu phòng ngủ nhỏ dành cho bố mẹ nghỉ ngơi. Bước lên tầng trên cũng chỉ bố trí không gian sinh hoạt riêng. Bao gồm 2 phòng ngủ dành cho con cái.
Một góc nhỏ nội thất của ngôi nhà
Trong đó toàn bộ không gian kiến trúc ngôi nhà sẽ được tô điểm bởi những gam màu tươi sáng. Đây là giải pháp để nới rộng không gian về mặt thị giác. Nội thất ưu tiên tông màu trung tính, nhã nhặn, đường nét và khối hình đơn giản.
Lời kết
Trên đây là Top 3 mẫu nhà cấp 4 có gác lực đẹp với giá thành như ý mà bạn có thể tham khảo cho mình. Hy vọng qua đó bạn sẽ mở mang được nhiều nguồn ý tưởng thiết kế để kiến tạo nên một tổ ấm lý tưởng nhất mang đậm chất riêng của bản thân. Ngoài ra nếu bạn còn thắc mắc điều gì hãy liên hệ với xaydungxhome.vn để được giải đáp và tư vấn cụ thể cho mình.
.jpg)
.jpg)
.jpg)
.jpg)
.jpg)
.jpg)
.jpg)
