Giới Thiệu Dự Án
FIVE STAR ECO CITY
Trong tình hình thị trường BĐS có xu hướng dịch chuyển mạnh mẽ về khu vực vùng ven và Tây Bắc TP Hồ Chí Minh thì sự xuất hiện của các dự án có quy mô khủng như Five Star Eco City đã được đánh giá cao, nhận được sự quan tâm của đông đảo khác hàng.
Five Star Eco City – một trong sản phẩm thuộc Danh sách dự án của CĐT là Tập đoàn Quốc tế Năm Sao tọa lạc tại địa bàn thuộc ba xã Phước Lý - Long Trạch - Long Khê - tỉnh Long An.
Tổng diện tích quy hoạch của dự án rộng 420 ha với vị thế “địa linh – nhân kiệt” đã được thiên nhiên ưu ái, ban tặng khí hậu bốn mùa trong lành, tươi mát. Các sản phẩm của dự án đã đem lại nơi an cư lý tưởng, hòa cùng môi trường sống thanh bình cho mọi cư dân.
THÔNG TIN DỰ ÁN FIVE STAR ECO CITY
- Dự án: Five Star Eco City
- Chủ đầu tư: Five Star Group
- Vị trí: Đường Đinh Đức Thiện – Tỉnh lộ 835B - xã Phước Lý, xã Long Trạch và xã Long Khê - tỉnh Long An
- Loại hình sản phẩm: đất nền nhà phố
- Tổng vốn đầu tư: 15.000 tỉ đồng (giai đoạn 1)
- Tổng diện tích: 420 ha
- Mật độ xây dựng: 40%
- Quy mô: 5 phân khu Lucky Land; Golden Land; Happy Land - Garden Land - Future Land
- Diện tích sản phẩm:
- + Nhà phố thương mại: 100 – 120m2
- + Biệt thự song lập: 150 – 250m2
- + Biệt thự đơn lập: 300 – 500m2
- Giá bán: 15 - 20 triệu đồng/m2
- Đại Lý Phân Phối: BẤT ĐỘNG SẢN EXPRESS
Vị Trí Tọa Lạc Đắc Địa FIVE STAR ECO CITY
Five Star Eco City Long An triển khai xây dựng với vị tri tọa lạc tại mặt tiền của tuyến đường Đinh Đức Thiện (nối dài) – Tỉnh lộ 835B thuộc địa bàn của 3 xã: Phước Lý thuộc huyện Cần Giuộc và xã Long Trạch; Long Khê của huyện Cần Đước - tỉnh Long An.
Nơi tọa lạc, triển khai dự án được đánh giá cao, là nơi chiến lược để gia tăng kết nối từ dự án tới các khu vực bằng hệ thống các tuyến đường cao tốc; đường vành đai đảm bảo đem lại sự thuận lợi cho sự phát triển nhanh chóng cho khu vực kinh tế phía Nam.
5 phút từ dự án đến với chợ Bình Chánh
Khoảng 30 phút tới với KĐT Phú Mỹ Hưng
18km từ dự án tới chợ Bến Thành
Chỉ 6km đến Bến xe Rạch Kiến

7 lý do nên chọn đầu tư FIVE STAR ECO CITY
Tiện Ích Đồng Bộ 5 Sao FIVE STAR ECO CITY
Five Star Eco City với mục tiêu đáp ứng mọi nhu cầu tư cơ bản – nâng cao của cư dân nên đã chú trọng trong đầu tư đầy đủ các tiện ích dịch vụ ngay nội khu như: trung tâm đơn vị hành chính; TTTM; bệnh viện chăm sóc sức khỏe; làng ẩm thực; trường học các cấp; sân chơi tennis; sân tập golf; trung tâm TDTT; bến du thuyền đẳng cấp;…
Và ngoài ra, dự án còn có vị trí nằm ngay gần với hàng loạt các tiện ích dịch vụ ngoại khu đẳng cấp, hiện hữu trong phạm vi như: hồ trung tâm vui chơi; khu vui chơi – giải trí; UBND; chợ Bình Chánh; KĐT Phú Mỹ Hưng; trường học các cấp;...
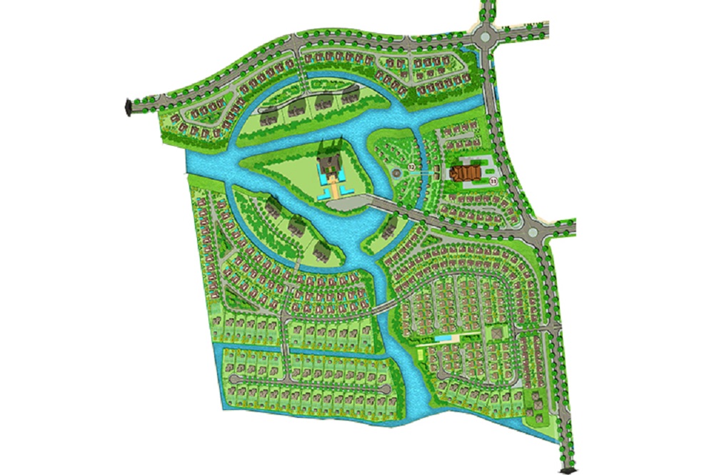
Mặt Bằng FIVE STAR ECO CITY
Five Star Eco City Long An sở hữu cho mình vị trí đắc địa, với địa thế khu đất cao và có hình dáng như một chiếc lá, không gian sống xanh của dự án được đánh giá cao khi ngay cạnh là nhánh sông Vàm Cỏ thơ mộng. Hình thành không gian sống xanh tươi mát, trong lành, view đắt giá, thoáng đãng để giúp tận hưởng cuộc sống trong lành nhất.
Tổng diện tích xây dựng của dự án vào khoảng 410 ha. Trong giai đoạn 1 triển khai quy mô 220 ha với số vốn đầu tư là 15.000 tỉ đồng. Trong giai đoạn 1 này, dự án bao gồm có 5 phân khu chính: Lucky Land; Golden Land; Happy Land; Garden Land; Future Land.

Mặt Bằng Chi Tiết FIVE STAR ECO CITY
Các phân khu của dự án trong giai đoạn 1 được quy hoạch như sau:
* Lucky Land: cung cấp các sản phẩm bao gồm:
+ Nhà phố thương mại: 100 – 120m2
+ Biệt thự song lập: 150 – 250m2
+ Biệt thự đơn lập: 300 – 500m2
*Garden Land: bố trí các khu biệt thự vườn
+ Dream Land: bao gồm 10 tòa lâu đài Hạnh Phúc (Happy Chateau) có diện tích rộng từ 2.000 – 5.000m2 + 5 tòa tháp trung tâm tài chính và thương mại
+ Khu Future Land: bố trí các căn nhà phố, diện tích từ 100m2
+ Khu Golden Land: Quy hoạch các căn biệt thự ven sông với loại hình đơn lập và song lập rộng 200 – 500m2





Thiết Kế FIVE STAR ECO CITY
Các sản phẩm của dự án được hình thành theo đúng như tên gọi là Thành phố sinh thái Năm Sao nên đã kiến tạo nên các sản phẩm theo xu hướng sống xanh, hình thành một thành phố xanh – sạch – đẹp, tránh xa sự ồn ào và xô bồ của cuộc sống.
Sự quy hoạch bài bản, hoàn chỉnh cũng như giữ nguyên vẻ đẹp nguyên sơ của thiên nhiên, bố trí các mảng sống xanh, xen kẽ cùng đo là hàng loạt tiện ích dịch vụ, mảng sống xanh của dòng sông Vàm Cỏ thơ mộng uốn lượn tạo nên vẻ đẹp cảnh quan cho toàn dự án, tăng chức năng thanh lọc; điều hòa không khí trong lành.
Các sản phẩm của dự án được lấy cảm hứng từ kiến trúc Châu Âu sang trọng, tinh tế trong từng chi tiết nhỏ nhất. Sự bố trí hợp lý và thông minh đã giúp hình thành không gian sống mở thoáng đãng; diện tích tiết kiệm, tối ưu hóa công năng sử dụng.
Giá Bán FIVE STAR ECO CITY
Dự án Five Star Eco City được mở bán với giá bán dao động trong khoảng từ 15 - 20 triệu đồng/m2. CĐT đưa ra PTTT linh hoạt trong thời gian dài hạn, được trả góp với mức lãi suất thấp trong dài hạn.
Ngân hàng ACB và Vietcom Bank đã hỗ trợ khách hàng vay vốn tới 80% giá trị sản phẩm trong khoảng thời gian 15 năm, mức lãi suất thấp.
Mật độ xây dựng: 40%
- Quý khách tham khảo thêm các chuyên mục khác của X HOME:
