Giới Thiệu Dự Án
CHUNG CƯ CARILLON 3
Dự án căn hộ Carillon 3 của chủ đầu tư là TTC Land triển khai xây dựng với vị trí tọa lạc tại số 171C đường Hoàng Hoa Thám - P 13 - Q.Tân Bình, tổng diện tích quy hoạch của dự án rộng 7.834 m2.
Cuộc sống của cư dân tại dự án trở nên tiện nghi, chất lượng hàng đầu khi được thừa hưởng các tiện ích dịch vụ hiện hữu, hệ thống hạ tầng giao thông hoàn chỉnh, khu dân cư đông đáo hình thành cộng đồng cư dân đông đúc.
Từ vị trí này, căn hộ Carillon 3 giúp mọi người tiếp cận tới các khu vực lân cận, tiện ích như: trường học các cấp; khu văn phòng; siêu thị mua sắm; sân bay Tân Sơn Nhất và đặc biệt là tiện lợi cho liên kết vùng với các quận, huyện lân cận.
THÔNG TIN DỰ ÁN CHUNG CƯ CARILLON 3
- Dự án: Carillon 3
- Vị trí: 171C đường Hoàng Hoa Thám - P 13 – Q.Tân Bình –TP Hồ Chí Minh
- Chủ đầu tư: TTC Land
- Loại hình sản phẩm: Căn Hộ Chung Cư
- Tổng diện tích: 1,321 m²
- Mật độ xây dựng: 45%
- Quy mô: 1 tòa tháp căn hộ cao 14
- Số lượng: 90 căn hộ + 6 căn shophouse
- Diện tích căn hộ: 46 - 63 m²
- Giá bán: từ 1,65 tỷ đồng/căn
- Giao nhà: 04/2017
- Đại Lý Phân Phối: CÔNG TY BDS EXPRESS
Vị Trí Tọa Lạc Đắc Địa CHUNG CƯ CARILLON 3
Căn Hộ Carillon 3 tọa lạc tại số 171A Hoàng Hoa Thám - P13 - Quận Tân Bình. Nơi đây giúp cư dân có 3 mặt đều tiếp giáp với các con đường như: Nguyễn Chánh Sắt; và đặc biệt là KDC hiện hữu. Nhờ tuyến đường này đã giúp kết nối trực tiếp tới các khu vực lân cận, điểm đến quan trọng của quận Tân Bình cũng như các quận, huyện khác.
Nhờ vị trí ngay trung tâm phát triển nhanh chóng của quận Tân Bình nên đã giúp cho mọi người được tiếp cận, sử dụng, thừa hưởng các tiện ích lân cận, nhờ hệ thống cơ sở hạ tầng, giao thông hoàn chỉnh cho một KDC cao cấp.
3 phút từ dự án tới siêu thị Citimart – Etown
Chỉ 10 phút để cư dân tới với siêu thị Maximax Cộng Hòa
15 phút để tới với sân bay Tân Sơn Nhất
5km đến trung tâm thành phố

8 lý do nên chọn đầu tư CHUNG CƯ CARILLON 3
Tiện Ích Đồng Bộ 5 Sao CHUNG CƯ CARILLON 3
Dự án Carillon 3 đảm bảo đem lại cho cư dân một cuộc sống chất lượng, tiện nghi hàng đầu nhờ chuỗi tiện ích dịch vụ đẳng cấp hiện hữu trong phạm vi khu vực nội khu như: nhà trẻ; trường học các cấp; siêu thị mini; shophouse thương mại; câu lạc bộ; khu thể dục thể thao trong nhà và ngoài trời; quán coffee; sân vườn; phòng sinh hoạt cộng đồng; phòng gym; spa;….
Ngoài ra, Căn hộ Carillon 3 có lợi thế kh nằm giữa KDC hiện hữu của tuyến đường Hoàng Hoa Thám -P 13- Q.Tân Bình. Nơi đây là khu vực sở hữu hệ thống cơ sở hạ tầng giao thông hoàn thiện, đồng bộ, giúp hình thành KDC đông đúc; văn minh hàng đầu. Như thế, từ căn hộ Carillon 3 đã giúp cư dân tiếp cận nhanh chóng với các tiện ích như: trường học các cấp; khu văn phòng; siêu thị Citimart – Etown; Sân bay Tân Sơn Nhất; trung tâm thương mại; các đơn vị hành chính;…
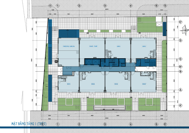
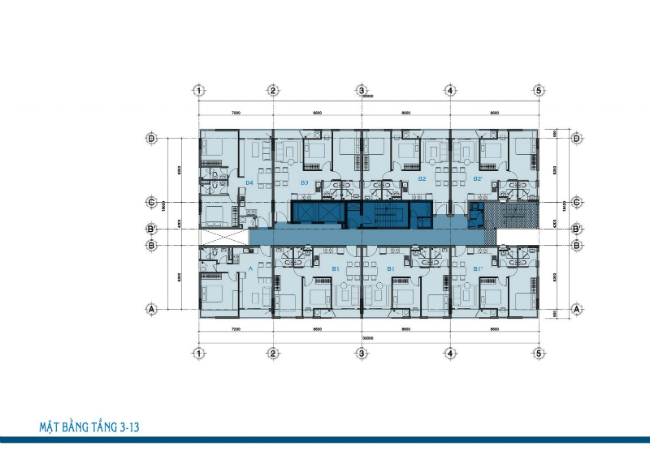
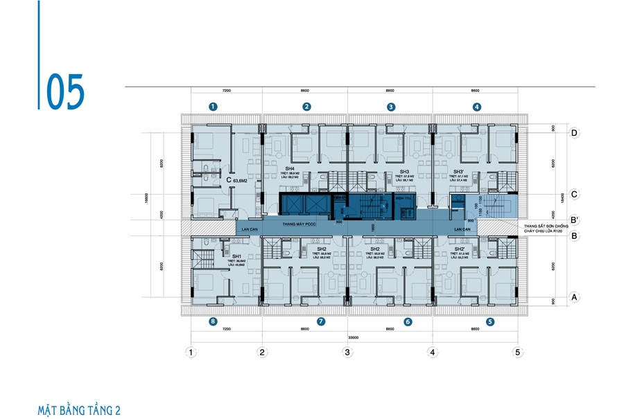
Mặt Bằng CHUNG CƯ CARILLON 3
Dự án Carillon 3 có tổng diện tích rộng 1,321 m², triển khai xây dựng với mật độ toàn dự án chỉ 45% bao gồm 1 tòa háp căn hộ với chiều cao 14 tầng + 1 tầng hầm để xe.
Mặt bằng quy mô của dự án được quy hoạch theo triết lý âm – dương với sự kết hợp hòa hợp, cân bằng. Bố trí tòa tháp hình thành một khối bền vững, bền vững, khiến cho mọi căn hộ đón nắng, gió tự nhiên bởi sự vuông vức. Từ đó giúp hình thành cuộc sống tiện nghi, chất lượng, ổn định cũng như thịnh vượng cho mọi cư dân khi lựa chọn an cư, sinh sống tại nơi đây.
Các căn hộ có sự vận dụng sáng tạo của yếu tố phong thủy trong thiết kế, hài hòa của các yếu tố thiên nhiên - kiến trúc thiết kế - con người.







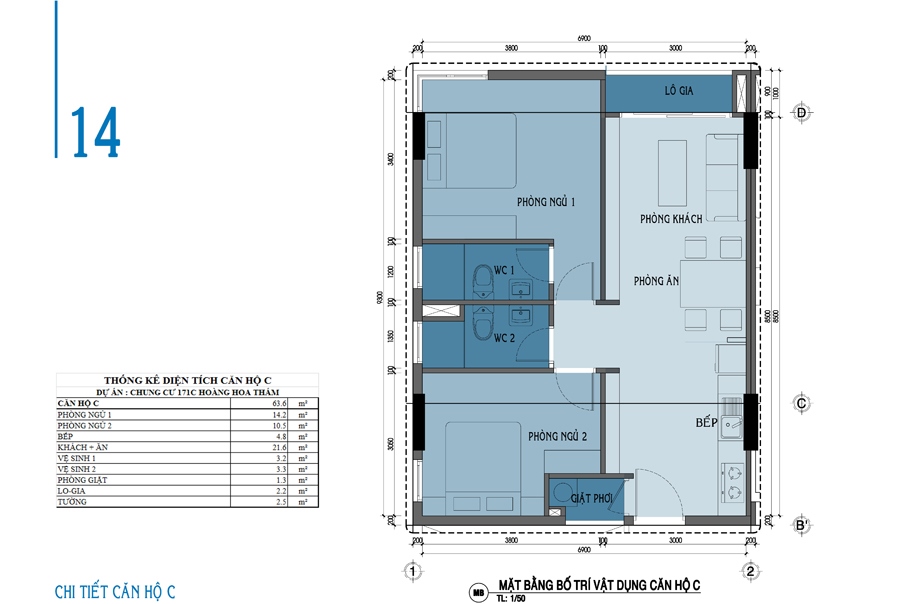
Mặt Bằng Chi Tiết CHUNG CƯ CARILLON 3
Carillon 3 đã hoàn thiện và bàn giao cho khách hàng vào quý II.2017 với các căn hộ đa dạng diện tích từ 46,3-63,9 m2 có 1-2PN hiện đại, tổng số lượng chỉ có 90 căn hộ thương mại + 6 căn Shophouse + 1 Penthouse.



Thiết Kế CHUNG CƯ CARILLON 3
TTC Land đã mở bán, bàn giao cho khách hàng các sản phẩm căn hộ theo phong cách hiện đại, sự kết hợp nhịp nhàng của thiên nhiên – nghệ thuật tại dự án Carillon 3.
Chi tiết kiến trúc cũng như những giá trị sống đạt tiêu chuẩn cao cấp đã giúp cư dân cảm nhận được sự sâu sắc, ý nghĩa của cuộc sống cũng như kiến tạo một tổ ấm hoàn hảo.
Cuộc sống của cư dân Carillon 3 giúp mọi người tận hưởng sự thoải mái trong không gian sống, an ninh an toàn bởi hệ thống thông minh, quản lý vận hành từ bên trong của ngôi nhà và khu vực.
Giá Bán CHUNG CƯ CARILLON 3
CĐT TTC Land đã đưa ra mức giá bán cho căn hộ Carillon 3 trong khoảng chỉ từ 1,65 tỷ/căn tương đương với mức giá bán tính trên m2 là 28- 30 triệu đồng/m2. Chính bởi thế mà căn hộ Carillon 3 đã nằm trong Danh sách dự ánđáng để xuống tiền đầu tư tại khu vực.
Chủ đầu tư đưa ra hình thức bán hàng theo hợp đồng cho vay. Khách hàng chỉ cần đặt cọc 20% giá trị sản phẩm và được CĐT cam kết mức lãu suất 10%/năm (tương đương 0,83%/ tháng).

- Quý khách tham khảo thêm các chuyên mục khác của X HOME:
